Wyszukiwarka

Kategorie

Prawiedniki-Kolonia - Dom Rynek Pierwotny

Data dodania: 16.06.2025
Numer Oferty: 434/2351/ODS

Informacje:

Cena:

1 149 000 PLN

Powierzchnia:

147.86 m²

Liczba pokoi:

4

Liczba pięter:

parterowy

Rok budowy:

2024

Powierzchnia działki:

750.00 m²

Opis:

Do sprzedaży dom w zabudowie bliźniaczej, położony na terenie gminy Głusk.

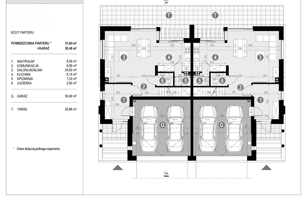
Domy w stanie deweloperskim o pow. użytkowej 117,40 m2 (całkowitej 147,86 m2).
Na powierzchni całkowitej znajduje się:
parter - wiatrołap (8,39m2), hol (6,09 m2), kuchnia (9,14 m2), salon z jadalnią (24,65 m2), spiżarnia (1,33 m2), łazienka (2,00 m2), garaż dwustanowiskowy (30,46 m2),
piętro - hol 9,87 m2), łazienka (8,82 m2), garderoba (4,09 m2), pokój (15,00 m2), pokój (10,40 m2), pokój (12,57 m2), pralnia z kotłownią (5,05 m2)
na parterze taras o pow. 20,88 m2, na piętrze taras o pow. 14 m2

Standard wykończenia budynku:
ściany beton komórkowy, strop gęsto-żebrowy, papa termozgrzewalna, ocieplenie ścian zewnętrznych - styropian 20 cm, posadzki cementowe wylewane mixokretem, tynki gipsowe,
instalacje- wod.-kan., elektryczna, alarmowa, internetowa, i pod klimatyzatory
okna PCV siedmiokomorowe, drzwi zewnętrzne i garażowe, rolety zewnętrzne sterowane radiowo pilotem, stelaż pod dwa klimatyzatory i pod sanitariaty.

Standard wykończenia zewnętrznego:
podjazd do garażu, taras, dojście do budynku i opaska wykonane z kostki.

Ogrzewanie gazowe podłogowe (piec 2-funkcyjny Buderus), woda z sieci miejskiej, szambo 10 m3.

Działka o pow. ok. 750m2 ogrodzona z bramą wjazdową posiada wieloletnie nasadzenia.

Załączone zdjęcia są poglądowe ze wstępną aranżacją wnętrz.
Cena zawiera podatek Vat - kupujący zwolniony z 2% podatku od czynności cywilno-prawnej.

Zapraszamy na prezentację - nie pobieramy prowizji od kupującego.

Licencja zawodowa pośrednika 2507


Informacje dodatkowe:

Liczba łazienek:

1

Formularz Kontaktowy